Ref.: 5963

Apartamento de lujo de obra nueva para comprar a pie de pistas del Tarter

Andorra - Tarter (El) | Apartamento

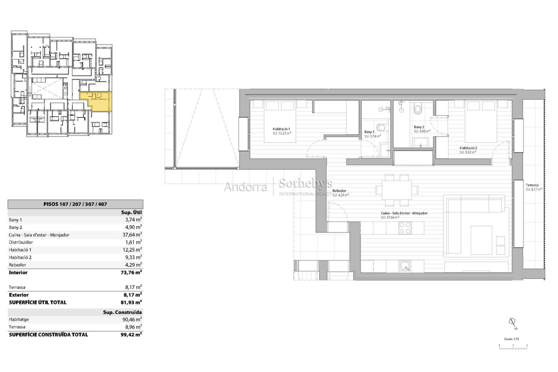
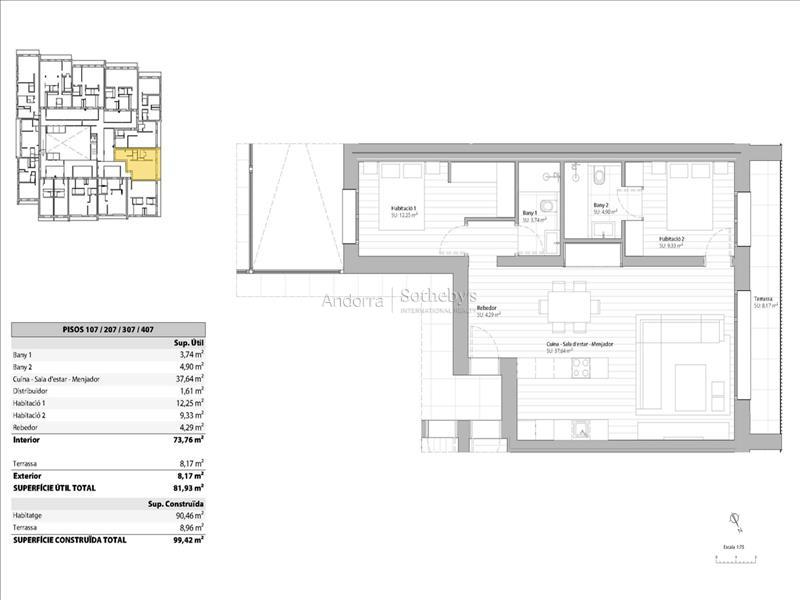
Superficie
99 m2
dormitorios
2
baños
2
Precio
850.000 €

Solicite más información sobre Apartamento de lujo de obra nueva para comprar a pie de pistas del Tarter

Ref.: 5963

| 5963

Descubre esta magnífica obra nueva ubicada en El Tarter. Con una superficie de 99,40 m2, esta propiedad ofrece un espacio moderno y espacioso para disfrutarlo al máximo. Con dos amplias habitaciones dobles, incluyendo una suite impresionante, este hogar es perfecto para aquellos que buscan comodidad y estilo. La cocina, integrada en el salón comedor, crea un ambiente acogedor y funcional. Desde aquí podrás acceder a una encantadora terraza de 8,95 m2 con vistas panorámicas al Valle de Canillo, y sol de tarde. Imagina disfrutar de las comidas exteriores o relajarte mientras contemplas las impresionantes vistas y las puestas de sol. El edificio cuenta con un box privado para dos coches, lo que brinda una comodidad adicional y permite tener tus vehículos protegidos del frío y la nieve. Esta propiedad está equipada con características de alta calidad, como iluminación LED de bajo consumo, suelo radiante y una elegante chimenea eléctrica. Además, cuenta con domótica que te permite controlar y gestionar fácilmente los sistemas del hogar desde su teléfono inteligente. Los electrodomésticos de primera calidad le ofrecen una experiencia culinaria excepcional, mientras que los suelos radiantes, y de gres porcelánico añaden un toque cálido, de sofisticación y durabilidad. La comunidad dispone de un spa y una zona de relax comunitario, donde podrás disfrutar de piscinas y jacuzzis, creando un ambiente de bienestar y relajación. Además un patio central con zona verde completa este entorno, proporcionando un espacio tranquilo y natural. No pierdas la oportunidad de vivir en esta maravillosa propiedad en El Tarter.

Características

  • A pie de pistas
  • Armarios empotrados
  • Soleado
  • Terraza
  • Calefacción
  • Parking
  • Vistas a la montaña
  • Transporte público cerca
  • Zona verde
  • Agua caliente
  • Conserje

Distancias

A menos de 5km

  • Ransol 1,3 km
  • Incles 1,3 km
  • Aldosa (L' ) (Canillo) 2,4 km
  • Soldeu 3,0 km

A menos de 10km

  • Canillo 5,4 km
  • Prats 6,6 km
  • Forn (El) 8,2 km

A la capital

  • Escaldes-Engordany 15,5 km
  • Andorra la Vella 16,6 km

Siguientes pasos

Contacte con nuestro equipo de consultores inmobiliarios para saber más sobre esta exclusiva promoción.

Solicite más información sobre Apartamento de lujo de obra nueva para comprar a pie de pistas del Tarter

Ref.: 5963