Réf.: 6095
Penthouse nouvellement construit à acheter à Escaldes-Engordany
Andorra - Escaldes-Engordany | Penthouse
Zone
138 m2
chambres à coucher
3
toilettes
2
Prix
1.750.000 €
| 6095
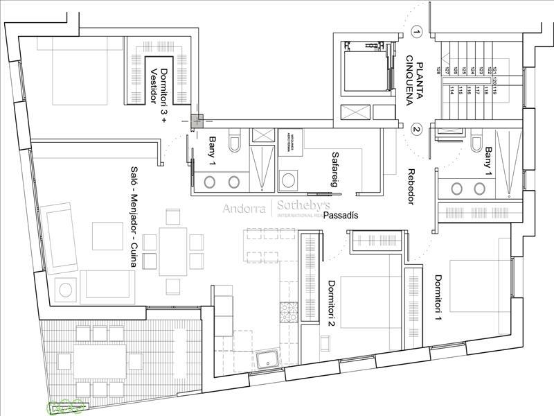
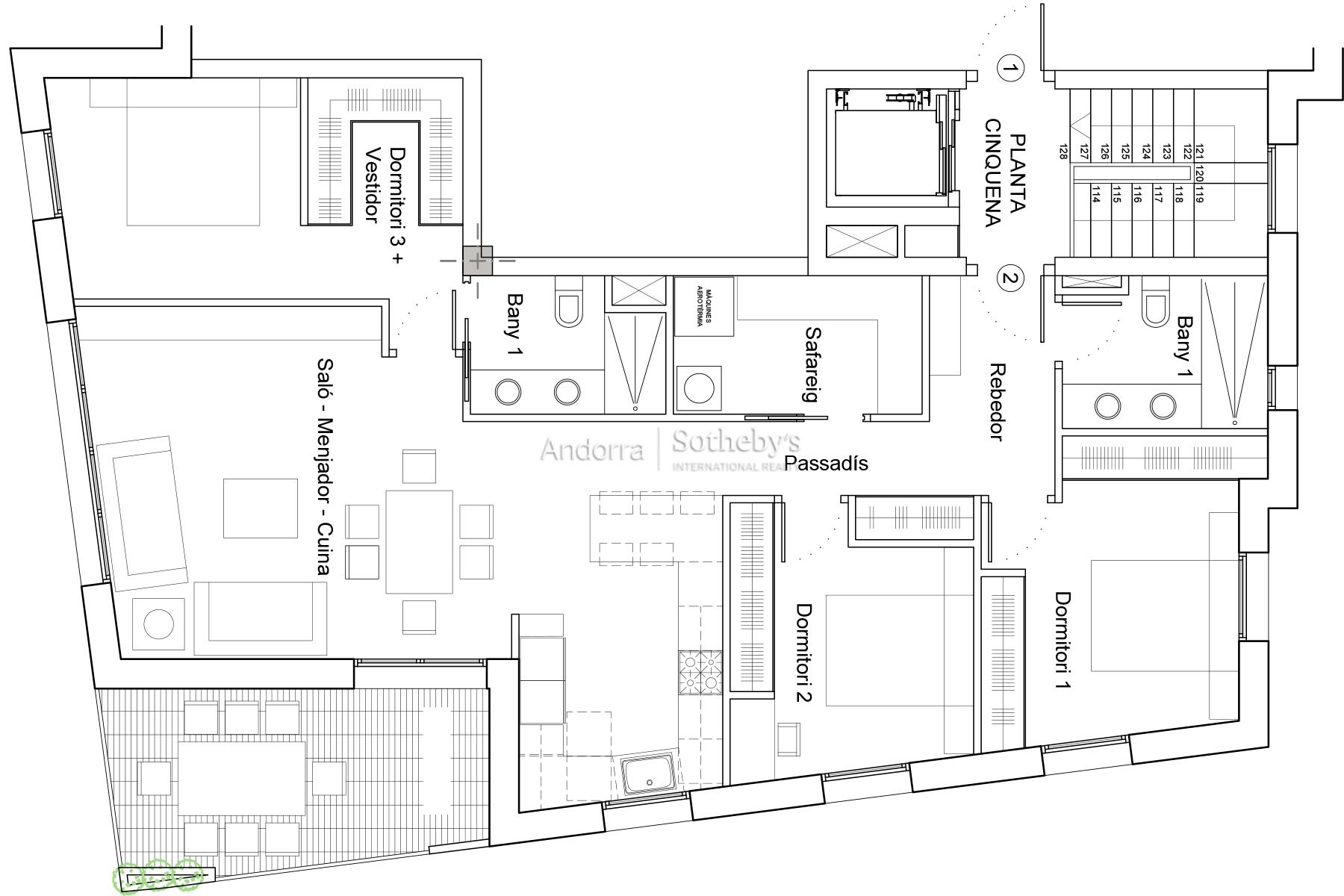
Cette magnifique propriété est située dans un nouveau complexe résidentiel en construction à Escaldes-Engordany, Residencial Marió, à quelques minutes du centre commercial et financier du pays. Avec une superficie de 138,90 m2, cette propriété moderne dispose d'une terrasse de 12,72 m2, offrant un environnement lumineux et ensoleillé grâce à son orientation optimale. La propriété se compose de 3 chambres ; 1 suite avec dressing, et 2 chambres doubles. Elle dispose également d'une salle de bain complète indépendante, en plus de celle de la suite, et d'une salle de lavage. Profitez d'un grand salon-salle à manger avec cuisine intégrée et accès à la terrasse, créant un espace parfait pour le divertissement. Parmi les caractéristiques remarquables, on trouve des finitions de haute qualité, un chauffage par aérothermie et pompe à chaleur, des volets en aluminium motorisés, un éclairage LED, un plancher chauffant, entre autres. De plus, des places de stationnement et des espaces de rangement sont disponibles selon vos besoins, qui ne sont pas inclus dans le prix de la propriété. La livraison de cette propriété est prévue pour avril 2025, vous offrant la possibilité de sécuriser votre maison dans ce complexe résidentiel exclusif.Caractéristiques
- Lessive
- Armoires encastrées
- Ensoleillé
- Terrasse
- Ascenseur
- Transports publics à proximité
- Vues sur la ville

Que trouvons-nous?
A moins de 5km
- Molleres 2,1 km
- Anyós 4,2 km
- Santa Coloma 4,8 km
- Sispony 4,9 km
A moins de 10km
- La Massana 5,5 km
- Encamp 5,5 km
- Vila 5,6 km
- Les Bons 5,6 km
- Escas 6,2 km
- Aixovall 6,7 km
- Aldosa (L' ) (La Massana) 7,1 km
- Erts 7,9 km
- Ordino 8,1 km
- Nagol 8,1 km
- Sant Julià de Lòria 8,4 km
- Sornàs 9,0 km
- Xixerella 9,3 km
- Ansalonga 9,6 km
- Arinsal 9,6 km
- Canillo 9,9 km
- Aixirivall 10,0 km
A la capitale
- Andorra la Vella 1,6 km
Prochaines étapes
Contactez notre équipe de conseillers immobiliers pour en savoir plus sur cette promotion exclusive.
Demander plus d'informations sur Penthouse nouvellement construit à acheter à Escaldes-Engordany
Réf.: 6095